
調節閥
閥門首頁 > 產品展示 > 調節閥 > 





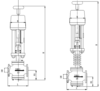
ZDLM型電子式電動套筒調節閥:由PS系列或3610系列直行程電動執行機構和低流阻直通單座閥組成。(也可配其它品牌直行程執行機構)。電動執行機構為電子式一體化結構,內有伺服放大 器,輸入控制信號(4-20mADC或1-5VDC)及電源即可控制閥門開度,達到對壓力、流量、液位、溫度等工參數的調節。具有動作靈敏、連線簡單、流 量大、體積小、調節精度高等特點。控制精度和性能比DKZ型有明顯提高。
| 公稱通徑DN | 25 | 32 | 40 | 50 | 65 | 80 | 100 | 125 | 150 | 200 | 250 | 300 | |
|---|---|---|---|---|---|---|---|---|---|---|---|---|---|
| 閥座直徑dn (mm) | 25 | 32 | 40 | 50 | 65 | 80 | 100 | 125 | 150 | 200 | 250 | 300 | |
| 額定流量系數Kv | 10 | 20 | 25 | 40 | 63 | 100 | 155 | 250 | 370 | 580 | 900 | 1300 | |
| 行程mm | 16 | 25 | 40 | 60 | 100 | 100 | |||||||
| 公稱壓力(MPa) | 1.6,2.5、4.0、6.4MPa | ||||||||||||
| 閥體可選材質 | WCB、CF8,CF3,CF3M,CF8M | ||||||||||||
| 閥芯可選材質 | 304,316 | ||||||||||||
| 允許壓差△MPa | ≤公稱壓力MPa | ||||||||||||
| 流量特性 | 等百分比特性,線性特性和快開特性 | ||||||||||||
| 基本誤差% | ±2.5 | ||||||||||||
| 回差% | 2.5 | ||||||||||||
| 死區% | 1.0 | ||||||||||||
| 始終點偏差% | ±2.5 | ||||||||||||
| 額定行程偏差% | 2.5 | ||||||||||||
| 允許泄漏量Q | Kv值的0.05% | ||||||||||||
| 可調范圍 | 50:1 | ||||||||||||
| 配電動執行器型號 | PSL | PSL201 | PSL202 | PSL204 | PSL208 | PSL312 | |||||||
| 3810L | SA-08 | 381LSA-20 | 381LSB-30 | 381LSB-50 | 381LSC-65 | ||||||||
| 公稱壓力介質溫度閥體材料 | 1.6MPa | 常溫-20℃~+200℃ 鑄鐵HT200 | |||||||||||
| 4.0MPa | 常溫-20℃~+200℃ 鑄鋼WCB 鑄不銹鋼CF8,CF3 | ||||||||||||
| 中溫-40℃~+450℃ 鑄鋼WCB 鑄不銹鋼CF8,CF3 | |||||||||||||
| 6.4MPa | 常溫-20℃~+200℃ 鑄鋼WCB 鑄不銹鋼CF8,CF3 | ||||||||||||
| 中溫-40℃~+450℃ 鑄鋼WCB 鑄不銹鋼CF8,CF3 | |||||||||||||
一、① 電子式電動套筒調節閥產品名稱與型號② 電子式電動套筒調節閥口徑③是否帶附件以便我們的為您正確選型。
二、若已經由設計單位選定上海湖泉的 電子式電動套筒調節閥型號,請按 電子式電動套筒調節閥型號直接向我司銷售部訂購。
三、當使用的場合非常重要或環境比較復雜時,請您盡量提供設計圖紙和詳細參數,由我們的湖泉閥門專家為您審核把關。
感謝您訪問我們的網站【http://www.20733.cn/】,如有任何疑問.您可以致電給我們,我們一定會盡心盡力為您提供優質的服務。
| DN | L | H1 | H | ||
|---|---|---|---|---|---|
| PN(MPa) | 常溫 | 中溫 | |||
| 1.6 | 6.4 | ||||
|
25 |
185 | 200 | 110 | 704 | 855 |
| 40 | 220 | 235 | 125 | 747 | 898 |
| 50 | 250 | 265 | 131 | 755 | 906 |
| 65 | 275 | 295 | 171 | 835 | 986 |
| 80 | 300 | 320 | 189 | 882 | 1033 |
| 100 | 350 | 400 | 208 | 920 | 1071 |
| 150 | 450 | 550 | 275 | 1117 | 1332 |
| 200 | 550 | 670 | 320 | 1310 | 1516 |
| 250 | 640 | 810 | 390 | 1420 | 1626 |
| 300 | 880 | 950 | 450 | 1520 | 1726 |
![]() |
| ZDLM型電子式電動套筒調節閥結構圖 |
|---|
上一篇:ZDJV、ZKJV系列電動V型調節閥 / 下一篇:ZDLP型電子式電動單座調節閥